109a Marcella St, Charlottesville VA 22911
- $769,900
- MLS #:670758
- 3beds
- 2baths
- 1half-baths
- 3,318sq ft
- 0.15acres
Neighborhood: The Grove At Brookhill
Square Ft Finished: 3,318
Square Ft Unfinished: 0
Elementary School: Hollymead
Middle School: Lakeside
High School: Albemarle
Property Type: residential
Subcategory: Detached
HOA: Yes
Area: Albemarle
Year Built: 2026
Price per Sq. Ft: $232.04
1st Floor Master Bedroom: DoubleVanity, WalkInClosets, EntranceFoyer, EatInKitchen, HomeOffice, KitchenIsland, Loft, MudRoom, RecessedLighting, Ut
HOA fee: $238
View: Mountains, Residential, Valley
Security: SmokeDetectors, CarbonMonoxideDetectors
Design: Craftsman, Farmhouse
Roof: Architectural,Composition,Shingle
Driveway: FrontPorch, Porch
Windows/Ceiling: InsulatedWindows, LowEmissivityWindows, Screens, TiltInWindows, Vinyl, EnergyStarQualifiedWindows
Garage Num Cars: 2.0
Cooling: CentralAir
Air Conditioning: CentralAir
Heating: Central, ForcedAir, HeatPump, Propane
Water: Public
Sewer: PublicSewer
Features: Carpet, CeramicTile, Hardwood, LuxuryVinylPlank
Basement: ExteriorEntry, Full, Heated, InteriorEntry, Unfinished, WalkOutAccess
Fireplace Type: One, Gas, GlassDoors, GasLog
Appliances: ConvectionOven, Dishwasher, EnergyStarQualifiedDishwasher, Disposal, GasRange, Microwave, Refrigerator
Amenities: AssociationManagement, CommonAreaMaintenance, Playground, ReserveFund, RoadMaintenance, SnowRemoval, Trash
Laundry: WasherHookup, DryerHookup
Amenities: Playground
Kickout: No
Annual Taxes: $6,883
Tax Year: 2026
Legal: The Grove at Brookhill lot 109 to be built Marigold plan
Directions: Route 29 N to Right turn on Polo Grounds Rd. Turn Left on Halsey Ave. Follow Halsey Ave to top of hill, Left on Sablewood Drive. Turn right on Laconia Lane. Follow to end and turn left on Marcella Street. Homesite 109 is on the left.
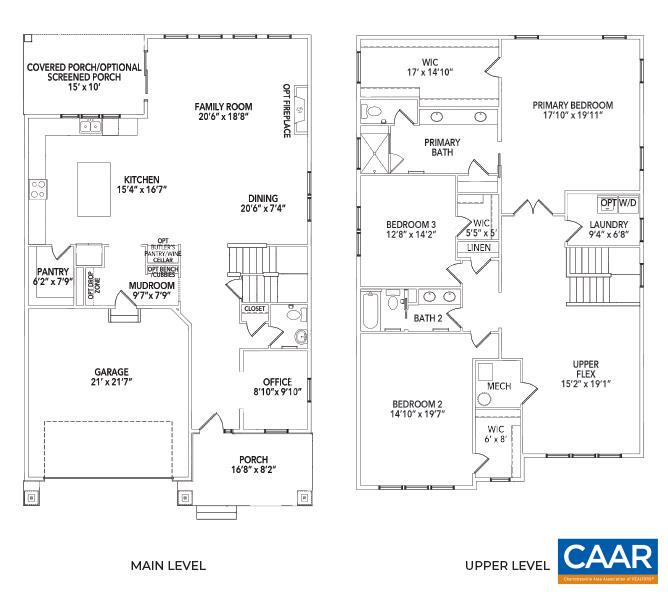
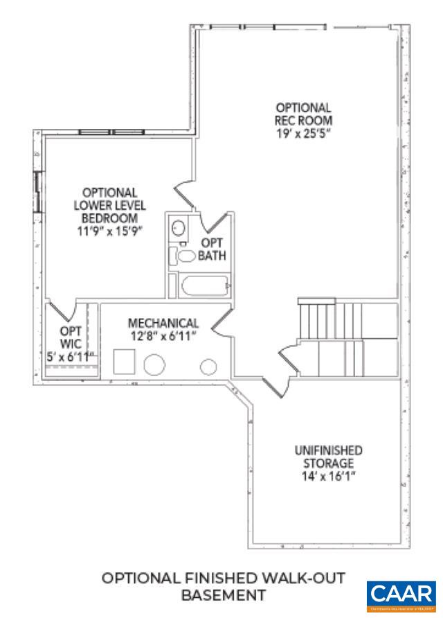
Exciting opportunity to build your own Marigold floor plan in The Grove at Brookhill, with an estimated 7 to 8 month build time. This is one of the newest plans available in the community's latest section along Route 29. What makes the Marigold stand out is the size of its bedrooms, each one comes with a roomy walk-in closet. The main level features an open layout with an L-shaped kitchen, walk-in pantry, and plenty of workspace at the center island. A covered porch, flex space, mudroom, and half bath add to the functionality of the first floor. Upstairs, a loft area can be used as a second living space or converted into a fourth bedroom with its own full bath. The primary suite is nearly 18x20 feet with a 17x15 foot walk-in closet and a spacious private bathroom. Two more well-sized bedrooms, a split-layout hall bath, two linen closets, and a laundry room complete the upper level. You can also choose to add a third-floor loft with an additional bedroom and bath. Photos are of a similar home and may include optional or upgraded features.
Builder: Greenwood Homes
Days on Market: 148
Updated: 4/02/26
Courtesy of: Nest Realty Group
Want more details?
Directions:
Route 29 N to Right turn on Polo Grounds Rd. Turn Left on Halsey Ave. Follow Halsey Ave to top of hill, Left on Sablewood Drive. Turn right on Laconia Lane. Follow to end and turn left on Marcella Street. Homesite 109 is on the left.
View Map
View Map
Listing Office: Nest Realty Group







